振动筛12年生产厂家
过滤,除杂,分级

3000-3500元/台
1440r/min转速:
0.25kw功率:
500kg/h处理量:
佰利乐特点:可增添清网球装置,减少物料堵塞,全封闭结构,可防止物料筛分过程中产生的粉尘污染。
适用物料:0-400目粉末都可以筛选,0-600目浆液都可以过滤
选型要点——
按材质分:不锈钢(与物料接触部分为不锈钢价格便宜耐用),全不锈钢
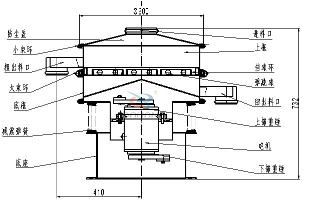
Φ600型振动筛该设备为600mm直径一层两出口不锈钢旋振筛,子母网分离式网架,底座为碳钢材质。价格便宜,换网容易、操作简单、清洗方便。



| 型 号 | 直径mm | 筛网面积m | 筛网规格(目) | 进料粒度mm | 振次rpm | 有效筛面直mm | 层数 | 功率Kw | 处理量(kg/h) |
| DH-600 | Φ600 | 0.24 | 2-500 | <Φ10 | 1500 | Φ560 | 1-5 | 0.25 | 500 |
直径600振动筛是由直立式振动电机佰利乐作为激振源,电机上、下两端安装有偏心重锤,将电机的旋转运动转变为水平、垂直、倾斜的三次元运动,再把这个运动传递给筛面进行筛分。调节上、下两端的相位角,可以改变物料在筛面上的运动轨迹。

筛网更换视频展示

新乡大汉振动筛厂家可根据客户需求设计特殊型号,无论物料是干是湿,是精细是粗糙,是比重大是比重轻,0-400目都可以筛选,不管是液态的,还是浆状的0-600目都可以过滤。大汉振动筛系列产品同时配备专门的筛网清理装置,把堵网率降到低,过网率和处理精度得以有效提高。
Copyright © 2007-2019 振动筛厂家-新乡市大汉振动机械有限公司 | All Rights Reserved 版权所有
备案序号: